Este site utiliza cookies para permitir a mudança de língua e o armazenamento dos seus imóveis favoritos. Ao utilizar este site, concorda que o mesmo utilize cookies.

Pesquisa de Imóveis

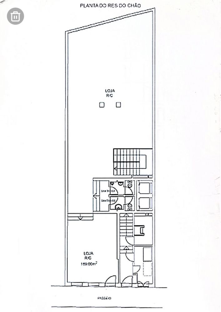
Loja | Comercio Serviços | Matosinhos

800.000€


Partilhar

Referência

0224.CAM2

Natureza

Venda

Tipo de Imóvel

Loja

Tipologia

Não se aplica

Estado

Usado

Certificado energético

C

Ano

2009

Distrito

Porto

Concelho

Matosinhos

Freguesia

Matosinhos e Leça da Palmeira

Código Postal

4450

Área Útil

170 m2

Área Bruta

288 m2

Área de Terreno

0 m2



"Quando acha que tudo é igual está a desistir de encontrar algo melhor."

Espaço destinado a Comercio ou Serviços em avenida central de Matosinhos servida por metro e com acesso directo a A4 e A28. O espaço desenvolve-se em dois pisos, r/c com uma montra de 4m e uma cave ampla.  


- Prestação mensal de condomínio: 
- Valor Patrimonial Tributário (VPT): 226.686,36€  
- IMI: 
- Certificado energético valido

 ________________________________________________________________________________________________________________________

A ComCasa® Imobiliária nasce com a Missão de prestar um serviço de Excelência.
O nosso objetivo é criar valor patrimonial e rendimento para o nosso cliente, com base numa equipa profissional (que integra elementos ligados à Gestão Imobiliária, assim como com credenciação na CMVM), respeitando assim os padrões de Ética, Discrição e Integridade

A nossa experiência é alicerçada nas melhores ferramentas tecnológicas disponibilizadas pelo mercado, consolidadas na qualidade e fiabilidade nos produtos que mediamos.

Nós somos a sua melhor estratégia para a transação do seu Imóvel!

Na ComCasa, “a nossa Casa é a sua Casa”
Geral
GeraisRés do chão:Sim
GeraisCalhas técnicas:Sim
GeraisShow-room:Sim
VistasCidade:Sim
Exposição SolarPoente:Sim
Quarto de BanhoPróprio:Sim
Fuga de FumosChaminé mecânica:Sim
InfraestruturasEsgotos:Sim
PavimentoFlutuante:Sim
Edificio
GeraisNº de Frentes :02
GeraisNº de Pisos:09
GeraisPermite animais:Sim
GeraisÁrea de fachada:4m
ElevadorNº de Elevadores:02
Tipo de EmpreendimentoHabitação:Sim
Tipo de EmpreendimentoLojas:Sim
Revestimento ExteriorCerâmica:Sim
Pavimento Hall de EntradaPedra natural:Sim
Paredes Hall de EntradaPintadas:Sim
Tecto Hall de EntradaFalso pladur:Sim
EquipamentoTV Cabo:Sim
EquipamentoVideo-Porteiro:Sim
ÁguaCompanhia:Sim
Zona
GeraisAeroporto:Sim
GeraisAuto-Estrada:Sim
GeraisMetro:Sim
GeraisPerto de mar:Sim
GeraisTransportes públicos:Sim
CentralidadeCentro da cidade:Sim
ProximidadeBancos:Sim
ProximidadeBombeiros:Sim
ProximidadeCentros comerciais:Sim
ProximidadeClínicas:Sim
ProximidadeEscolas:Sim
ProximidadeFarmácias:Sim
ProximidadeGinásios:Sim
ProximidadeHospitais:Sim
ProximidadeJardins:Sim
ProximidadeJardins de infância:Sim
ProximidadePadarias:Sim
ProximidadePolícia:Sim
ProximidadePraias:Sim
ProximidadeServiços públicos:Sim
ProximidadeSupermercados:Sim
AcessosAlcatrão:Sim

Este imóvel não tem áreas definidas.

Contactar Imobiliária

*Preenchimento obrigatório
Ao clicar em 'Enviar', declara que aceita a nossa Política de Privacidade.


Imóveis
Semelhantes

VENDIDO!!

Imovel Loft | Lavra | Matosinhos

Porto, Matosinhos, Perafita, Lavra e Santa Cruz do Bispo

Preço sob consulta

Ref: 0237.4L

Ref: 0237.4L

90 m2

02

COMERCIO OU SERVIÇOS !!

Loja | comercio serviços | Matosinhos

Porto, Matosinhos, Matosinhos e Leça da Palmeira

750.000€

Ref: 0224.BIQ5

Ref: 0224.BIQ5

196 m2

01

Sim

Loja nova | Comercio Serviços ou Hotelaria | Parque da Cidade | Matosinhos Sul

Porto, Matosinhos, Matosinhos e Leça da Palmeira

990.000€

Ref: 0012.A

Ref: 0012.A

330 m2

2