Este site utiliza cookies para permitir a mudança de língua e o armazenamento dos seus imóveis favoritos. Ao utilizar este site, concorda que o mesmo utilize cookies.

Pesquisa de Imóveis

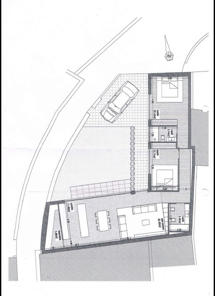
Terreno | moradia tipo pátio V2 | Perafita

122.000€


Partilhar

Referência

0224.SC33

Natureza

Venda

Tipo de Imóvel

Terreno

Subtipo de Imóvel

Terreno Urbano

Tipologia

T2

Estado

Em Projecto

Certificado energético

A+

Ano

2026

Distrito

Porto

Concelho

Matosinhos

Freguesia

Perafita, Lavra e Santa Cruz do Bispo

Código Postal

4455-445

Área Útil

105 m2

Área Bruta

107 m2

Área de Terreno

185 m2



"Quando acha que tudo é igual esta a desistir de encontrar algo melhor."

Moradia com arquitetura desenvolvida para o espaço exterior (jardim). Moradia térrea Tipo Pátio 
Projecto aprovado com licenças pagas pronta para iniciar a construção, tipologia V2.

Pode começar a obra da sua nova casa já amanhã!! Sem perder tempo em aprovação de projecto…
  
Proximidade:

- Praia Cabo do Mundo
- Supermercado Mini Preço
- Igreja S. Maede Perafita 
- Farmacia Perafitense 


Valor Patrimonial Tributário (VPT): N/D
PRE-CERTIFICADO energético válido 


________________________________________________________________________________________________________

A ComCasa® Imobiliária nasce com a Missão de prestar um serviço de Excelência.
O nosso objetivo é criar valor patrimonial e rendimento para o nosso cliente, com base numa equipa profissional (que integra elementos ligados à Gestão Imobiliária, assim como com credenciação na CMVM), respeitando assim os padrões de Ética, Discrição e Integridade

A nossa experiência é alicerçada nas melhores ferramentas tecnológicas disponibilizadas pelo mercado, consolidadas na qualidade e fiabilidade nos produtos que mediamos.

Nós somos a sua melhor estratégia para a transação do seu Imóvel!
Geral
VistasCampo:Sim
Exposição SolarNorte:Sim
Exposição SolarPoente:Sim
GeraisMurada:Sim
InfraestruturasA Efectuar:Sim
InfraestruturasIluminação de rua:Sim
TerrenoResidencial:Sim
AcessosAsfalto:Sim
AcessosUrbano:Sim
Edificio
GeraisNº de Frentes :02
EquipamentoJardins:Sim
ÁguaCompanhia:Sim
Zona
GeraisAeroporto:Sim
GeraisAuto-Estrada:Sim
GeraisPerto de mar:Sim
GeraisPerto de rio:Sim
GeraisTransportes públicos:Sim
CentralidadePeriferia da cidade:Sim
ProximidadeBancos:Sim
ProximidadeBombeiros:Sim
ProximidadeCentros comerciais:Sim
ProximidadeClínicas:Sim
ProximidadeEscolas:Sim
ProximidadeFarmácias:Sim
ProximidadeHospitais:Sim
ProximidadeJardins:Sim
ProximidadeJardins de infância:Sim
ProximidadePadarias:Sim
ProximidadePraias:Sim
ProximidadeServiços públicos:Sim
ProximidadeSupermercados:Sim
AcessosAlcatrão:Sim
quarto suite :24 m2
quarto :13 m2
hall quartos:3 m2
casa banho serviço:6 m2
sala :36 m2
cozinha :12 m2
lavandaria :6 m2
jardim :50 m2

Contactar Imobiliária

*Preenchimento obrigatório
Ao clicar em 'Enviar', declara que aceita a nossa Política de Privacidade.


Imóveis
Semelhantes

Terreno Moradia isolada - Lavra Matosinhos

Porto, Matosinhos, Perafita, Lavra e Santa Cruz do Bispo

250.000€

Ref: 0518A

Ref: 0518A

144 m2

Lotes de terreno | Lavra

Porto, Matosinhos, Perafita, Lavra e Santa Cruz do Bispo

450.000€

Ref: 0727.2

Ref: 0727.2

714 m2

PROJECTO APROVADO 11 (T1)

Terreno | Projecto Multifamiliar | Matosinhos

Porto, Matosinhos, Custóias, Leça do Balio e Guifões

450.000€

Ref: 0224.GUI

Ref: 0224.GUI

1030 m2