Este site utiliza cookies para permitir a mudança de língua e o armazenamento dos seus imóveis favoritos. Ao utilizar este site, concorda que o mesmo utilize cookies.

Pesquisa de Imóveis

Casa ou Moradia | Matosinhos

Preço sob consulta


Partilhar

Referência

0224.CAM1

Natureza

Venda

Tipo de Imóvel

Moradia

Tipologia

T3

Estado

Usado

Certificado energético

F

Ano

1933

Distrito

Porto

Concelho

Matosinhos

Freguesia

Matosinhos e Leça da Palmeira

Código Postal

4450

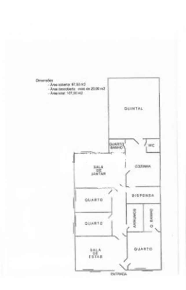
Área Útil

88 m2

Área Bruta

108 m2

Área de Terreno

108 m2



"Quando acha que é igual esta a desistir de encontrar algo melhor."

- Imovel no centro de Matosinhos para venda com potencial para quem procura gerar rendimentos passivos (arrendamento) ou também para habitação própria.  

Descrição do espaço,

Uma moradia com bons espaços, bem localizada, com ar condicionado, nos quartos e aquecimento central. É de fácil acesso de carro ou metro para o centro da Cidade de Matosinhos.

Composta por sala de estar, sala de jantar, um quarto (suite) com espaço para uma cama extra de criança e quarto de banho completo independente, mais dois quartos, outro quarto de banho, closet, cozinha equipada com placa e forno elétricos, frigorífico, micro-ondas, máquina de lavar louça, máquina de café, torradeira, e todos os eletrodomésticos necessários na cozinha incluindo todos os seus acessórios para quem gosta de cozinhar :)
Tem um pequeno terraço com churrasqueira onde pode fazer grelhados e as refeições que a familia tanto gosta, este terraço tem a particularidade de estar diretamente ligado à cozinha. 

O imovel, está localizado no centro da cidade de Matosinhos. Zona plana, boa para passeios a pé em particular junto à praia.
Tem supermercados nas redondezas da moradia; a praia fica a 10 minutos; parque infantil, junto à Câmara Municipal, a 5 minutos; Parque da Cidade do Porto a 10 minutos; restaurante perto da moradia.

Mesmo não dispondo de garagem o estacionamento de viaturas esta facilitado. Tem a estação do metro “Câmara de Matosinhos” a 1 minutos da moradia que os leva ao centro da cidade do Porto “estação Trindade” em 20 minutos. 

Caracteristicas: 

- proximo ao metro 
- facil acesso A4 e A28 ou AEP
- area do terreno 108m2
- ar condicionado



Valor Patrimonial Tributario (VPT): 56.591,21€
Prestação mensal de condominio: N/A

_____________________________________________________________

A ComCasa® Imobiliária nasce com a Missão de prestar um serviço de Excelência.
O nosso objetivo é criar valor patrimonial e rendimento para o nosso cliente, com base numa equipa profissional (que integra elementos ligados à Gestão Imobiliária, assim como com credenciação na CMVM), respeitando assim os padrões de Ética, Discrição e Integridade

A nossa experiência é alicerçada nas melhores ferramentas tecnológicas disponibilizadas pelo mercado, consolidadas na qualidade e fiabilidade nos produtos que mediamos.

Nós somos a sua melhor estratégia para a transação do seu Imóvel!

Na ComCasa, “a nossa Casa é a sua Casa”
Geral
ClimatizaçãoAquecimento central:Sim
ClimatizaçãoAr condicionado:Sim
ClimatizaçãoCilindro eléctrico:Sim
CaixilhariaAluminio:Sim
CaixilhariaVidro Duplo:Sim
VistasCidade:Sim
VistasJardins:Sim
Exposição SolarNorte:Sim
Exposição SolarSul:Sim
GeraisMurada:Sim
GeraisNº de Divisões :04
GeraisNº de Casas de Banho:02
GeraisNº de Terraços:01
GeraisNº de Arrecadações:01
Luz NaturalPouco Iluminado:Sim
InfraestruturasEsgotos:Sim
CozinhaMóveis madeira:Sim
PavimentoCerâmica:Sim
Edificio
GeraisNº de Frentes :02
GeraisNº de Pisos:01
GeraisPermite animais:Sim
GeraisAcesso mobilidade reduzida:Sim
Revestimento ExteriorPintado:Sim
Pavimento Hall de EntradaTijoleira:Sim
Tecto Hall de EntradaFalso pladur:Sim
ÁguaCompanhia:Sim
Zona
GeraisAuto-Estrada:Sim
GeraisMetro:Sim
GeraisTransportes públicos:Sim
CentralidadeCentro da cidade:Sim
ProximidadeBancos:Sim
ProximidadeBombeiros:Sim
ProximidadeClínicas:Sim
ProximidadeEscolas:Sim
ProximidadeFarmácias:Sim
ProximidadeGinásios:Sim
ProximidadeHospitais:Sim
ProximidadeJardins:Sim
ProximidadeJardins de infância:Sim
ProximidadePadarias:Sim
ProximidadePolícia:Sim
ProximidadeServiços públicos:Sim
ProximidadeSupermercados:Sim
AcessosAlcatrão:Sim

Este imóvel não tem áreas definidas.

Contactar Imobiliária

*Preenchimento obrigatório
Ao clicar em 'Enviar', declara que aceita a nossa Política de Privacidade.


Imóveis
Semelhantes

MORADIA COM PISCINA DESCOBERTA!!

Moradia V4 | piscina descoberta | proximo da praia | Lavra Matosinhos

Porto, Matosinhos, Perafita, Lavra e Santa Cruz do Bispo

Preço sob consulta

Ref: 0966

Ref: 0966

192 m2

4

04

Sim

VENDIDA !!

Moradia V4 | nova | 4 suítes | Guifoes Matosinhos

Porto, Matosinhos, Custóias, Leça do Balio e Guifões

Preço sob consulta

Ref: 0237.10

Ref: 0237.10

180 m2

4

05

Sim

MORADIA TERREA PRONTA A HABITAR !!

Moradia | Térrea | pátio | V3 Suites | Matosinhos

Porto, Matosinhos, Perafita, Lavra e Santa Cruz do Bispo

595.000€

Ref: 0237.14.PD

Ref: 0237.14.PD

206 m2

3

04

Sim